Planos de Acabados y Revestimientos en Proyectos de Diseño de interiores
Cuando se trata de proyectos de diseño de interiores, un aspecto crucial que nunca debe pasarse por alto es el diseño y selección de acabados y revestimientos. La elección adecuada de acabados y revestimientos no solo mejora la estética general de un espacio, sino que también añade funcionalidad y durabilidad. En este artículo, exploraremos la importancia de incorporar planos de acabados y revestimientos bien planificados en proyectos de diseño de interiores.
Índice:

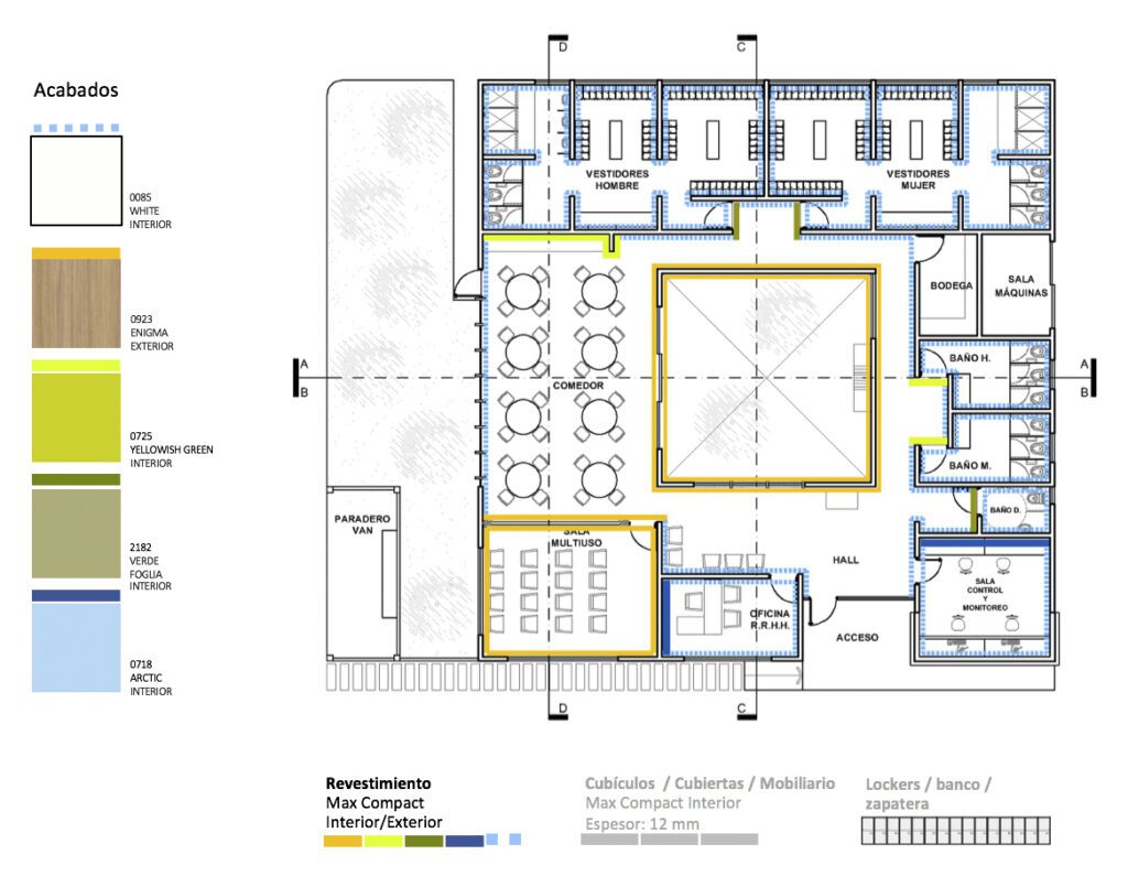
Programa de acabados y revestimiento
Un plan de acabado, también conocido como un programa de acabados, es un documento detallado que describe los acabados y revestimientos específicos que se utilizarán en diferentes áreas de un proyecto de diseño. Incluye información sobre materiales de suelo, acabados de paredes, colores de pintura, diseños de techos y varios otros elementos decorativos. El propósito principal de un plan de acabado es garantizar consistencia y coherencia en el esquema de diseño general, teniendo en cuenta los requisitos funcionales de cada área.

Los planos de revestimiento, por otro lado, se centran específicamente en revestimientos protectores para diversas superficies. Estos revestimientos pueden incluir selladores, barnices, tintes y pinturas aplicadas para proteger y preservar materiales como madera, metal o concreto. Los planos de revestimiento desempeñan un papel vital en la determinación de la durabilidad, facilidad de mantenimiento y longevidad de las superficies dentro de un espacio.

La Importancia de Planos de Acabados y Revestimientos Bien Diseñados
1. Estética: La elección adecuada de acabados y revestimientos puede transformar un espacio de ordinario a extraordinario. Los planos de acabado bien diseñados garantizan que los materiales seleccionados, los colores, los patrones y las texturas se complementen entre sí y creen un atractivo visual armonioso. Del mismo modo, los planos de revestimiento ayudan a mantener la apariencia deseada de las superficies a lo largo de su vida útil.
2. Funcionalidad: Diferentes áreas dentro de un proyecto tienen requisitos funcionales distintos. Por ejemplo, las zonas de alto tráfico pueden requerir materiales de suelo más duraderos, mientras que las áreas húmedas pueden necesitar revestimientos impermeables especializados. Considerando la funcionalidad durante la etapa de planificación, los diseñadores pueden garantizar que los acabados y revestimientos elegidos sean adecuados para cada área designada.
3. Durabilidad y Mantenimiento: Implementar acabados y revestimientos duraderos es esencial para aumentar la longevidad de las superficies en un espacio. Los planos de revestimiento bien diseñados incluyen capas protectoras que protegen contra el desgaste, las manchas y los daños, lo que facilita el mantenimiento y resulta más rentable a largo plazo.
4. Consistencia y Cohesión: Los planos de acabado facilitan la consistencia y cohesión en los esquemas de diseño. Al especificar los mismos acabados y revestimientos en diferentes áreas, los diseñadores crean una sensación de unidad y fluidez, asegurando una transición sin problemas de un espacio a otro.

Consideraciones Clave en el Diseño de Planos de Acabados y Revestimientos
1. Requisitos del Cliente: Comprender las preferencias y patrones de uso del cliente es esencial. Sus preferencias estéticas, limitaciones presupuestarias y expectativas de mantenimiento deben guiar la selección de acabados y revestimientos.
2. Selección de Materiales: Evaluar diversos materiales disponibles en el mercado es crucial para identificar las opciones más adecuadas para cada aspecto del plan de acabado. Los factores a considerar incluyen durabilidad, requisitos de mantenimiento, impacto ambiental y rentabilidad.
3. Cumplimiento de Códigos de Construcción: Es fundamental asegurarse de que los acabados y revestimientos seleccionados cumplan con los códigos y regulaciones de construcción locales. Esto incluye factores como resistencia al fuego, resistencia al deslizamiento y emisiones de VOC.
4. Integración con Iluminación y Mobiliario: Considere cómo diferentes acabados y revestimientos interactúan con la iluminación y el mobiliario. Algunos materiales pueden reflejar o absorber la luz de manera diferente, lo que afecta la ambientación general. De manera similar, la elección de acabados debe complementar los muebles y la decoración seleccionados.

La Belleza en los Detalles
La integración de planos de acabados y revestimientos bien diseñados en proyectos de diseño de interiores es crucial. Estos planos garantizan el atractivo estético, la funcionalidad, la durabilidad y la facilidad de mantenimiento, al tiempo que crean consistencia y cohesión en todo el espacio. Al considerar cuidadosamente los requisitos del cliente, la selección de materiales, los códigos de construcción y la integración con iluminación y mobiliario, los diseñadores pueden ofrecer resultados excepcionales en sus proyectos.













